北山地区の物件一覧

北山地区について

蓼科、白樺湖などの観光地を抱えているエリアです。農村集落が広がり、別荘地も含めた広大な地域です。標高が高く、冬は雪が比較的多い地区ではありますが、山の間近で静かに田舎暮らしを満喫したいという方には最適です。別荘やその周辺エリアは移住者に人気です。

北山地区の物件一覧

4件の物件登録があります。

貸物件 北山貸家

c0082


商談中

こだわり条件

おすすめポイント

茅野市北山にある平家(一部2階)の戸建て貸家です。
当物件は、国道152号線(大門街道)沿いにある北山郵便局を曲がった先に位置しています。
周辺は比較的のどかで落ち着いた雰囲気の閑静な住宅街にあります。
北山小学校までは徒歩約11分(約850m)とお子様がいらっしゃるご家庭にもおすすめです。
また周辺には、湯川温泉 河童の湯があり徒歩約6分で行くことが可能です。
敷地内には屋根付き駐車場があり3台駐車が可能です。
本物件の屋根にはソーラーパネルも設置されております。
居住用としてはもちろん、音の少ない店舗や作業所としての利用も可能です。
また、改装やDIYも可能です。
茅野市北山で貸家をお探しの方、田舎暮らしを始めたい方、移住や二地域居住をお考えの方などにもおすすめです。

所在地 長野県茅野市北山
価格 55,000円
敷地面積 458㎡
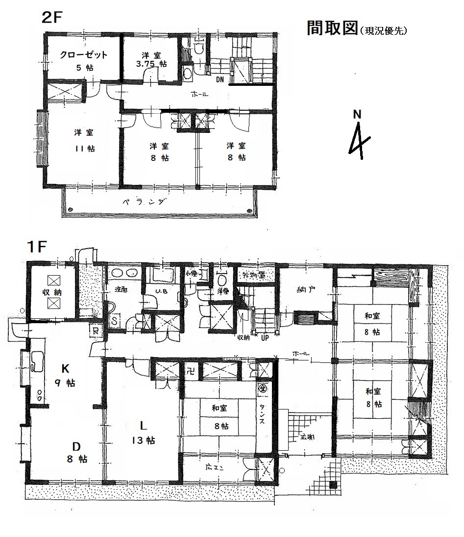
間取り 5DK

詳しく見る

 

買物件 茅野市北山 湯川蔵付中古住宅

j0032


こだわり条件

おすすめポイント

北山湯川区の大門街道沿いに建つ床暖房(動作確認済)のある中古住宅です。敷地内に住宅の他に土蔵とガレージ車庫、池、家庭菜園あり。広いリビングダイニングと個室が多いので民泊などの営業にもおすすめです。(ボイラー交換済)。湯川温泉河童の湯まで410m徒歩6分で行けます。

標高965m

所在地 長野県茅野市北山1062-1
価格 2,500万円
敷地面積 938.39㎡
間取り 7LDK
築年月 1994年11月

詳しく見る

 

買物件 茅野市北山湯川

c0011


こだわり条件

おすすめポイント

古民家風の黒く太い梁が趣を感じさせます。
敷地も広いので、多様な利用方法が考えられます。

所在地 長野県茅野市北山湯川1194-2
価格 750万円
敷地面積 903.22㎡
間取り 8DK
築年月 1926年5月

詳しく見る

 

買物件 茅野市北山中古住宅

c0018


こだわり条件

おすすめポイント

八ヶ岳の眺望の良い農地付の広い敷地

所在地 長野県茅野市北山8266
価格 800万円
敷地面積 548.3㎡
間取り 2K
築年月 1983年6月

詳しく見る

 

ホームへ戻るアイコン
トップへ戻るアイコン